3 1

3 bed Terraced House - Under Offer
Timber Street, Wigston, Leicestershire
£200,000

  • Extended Three Bedroom Terrace
  • Close Proximity To Local Amenities
  • Front And Rear Reception Rooms, Good Sized Extended Kitchen
  • Primary Bedroom, Office/Bedroom & Family Bathroom
  • Loft Conversion To Top Floor With One Bedroom
  • Two Outdoors Store, Rear Garden
  • Gas Central Heating System & Double Glazing
  • Early Viewing Essential To Appreciate The Size, Style And Layout Of This Lovely Home
  • EPC Rating D & Council Tax Band A

A extended three bedroom  mid terrace property located in the popular location of South Wigston. An ideal investment or first time buy, early viewing comes highly recommended to appreciate the style and layout.

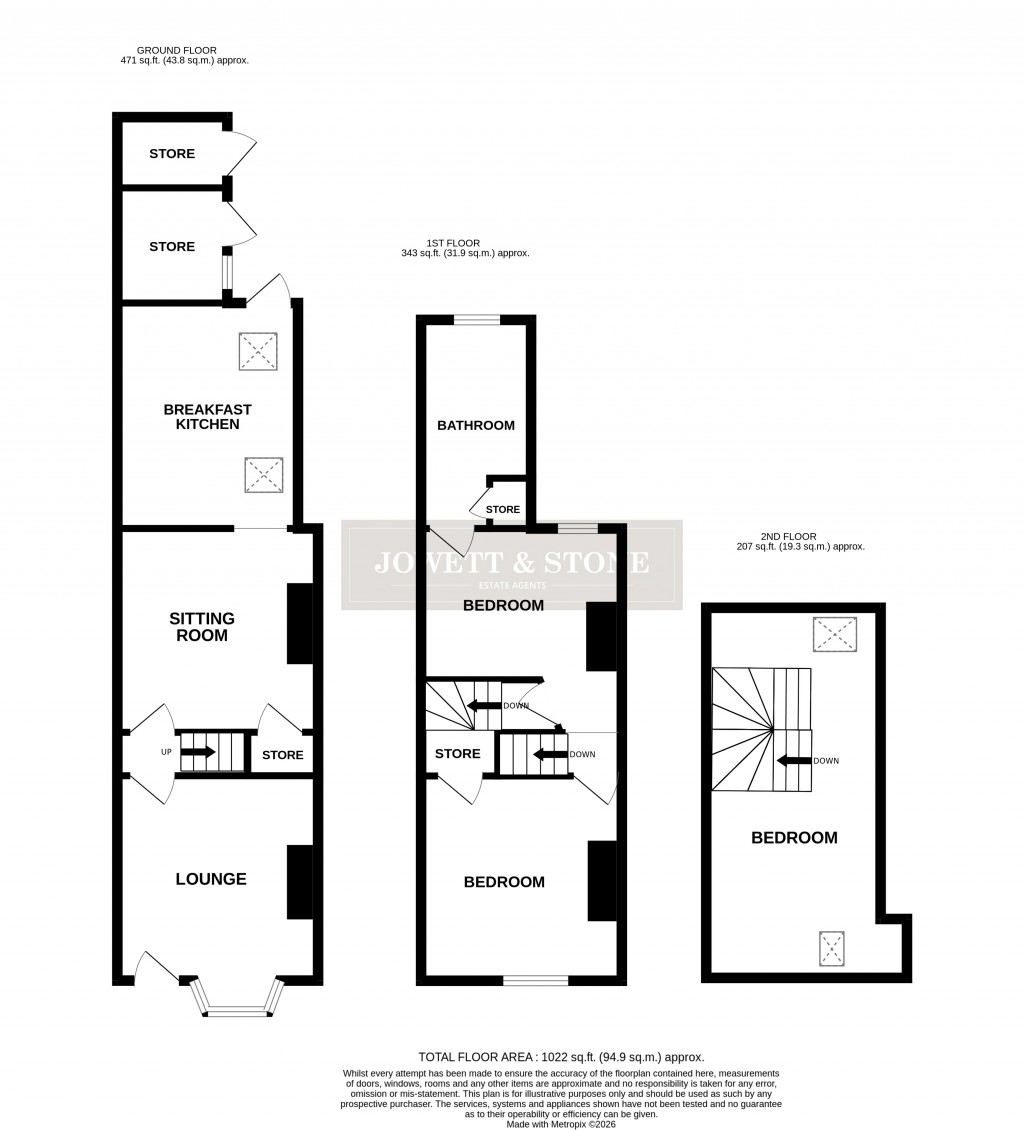
A extended three bedroom mid terrace property located in the popular location of South Wigston. An ideal investment or first time buy, early viewing comes highly recommended to appreciate the style and layout. The property comprises of front reception room with log burner and rear reception room with central stairs leading to the first floor accommodation,  extended rear breakfast kitchen area fitted with  range of wall and base units, oven, hob , extractor, 2 Velux windows and door leading out to the garden. To the first floor there is the primary bedroom to the front with a good sized storage cupboard, rear bedroom giving access to the loft conversion stairwell and family bathroom. The loft conversion is a good sized double bedroom with Velux window to the rear. The property also benefits from gas fired central heating and double glazing. Externally the property has a two brick built stores, garden with mature shrubs and a mix of fence and brick surround with gate for access. EPC rating D and Council tax band A.

Floorplans For Timber Street, Wigston, Leicestershire
EPC For Timber Street, Wigston, Leicestershire
Arrange a viewing for Timber Street, Wigston, Leicestershire

For further details on this property please call us on:
0116 2789624

Arrange Viewing

Share: