2 1

2 bed Terraced House - Instruction to Sell
Leopold Street, Wigston, Leicestershire
Offers in Region of £190,000

  • Well Presented Two Bed Mid Terrace Property
  • Ideal First Time or Investment Buy
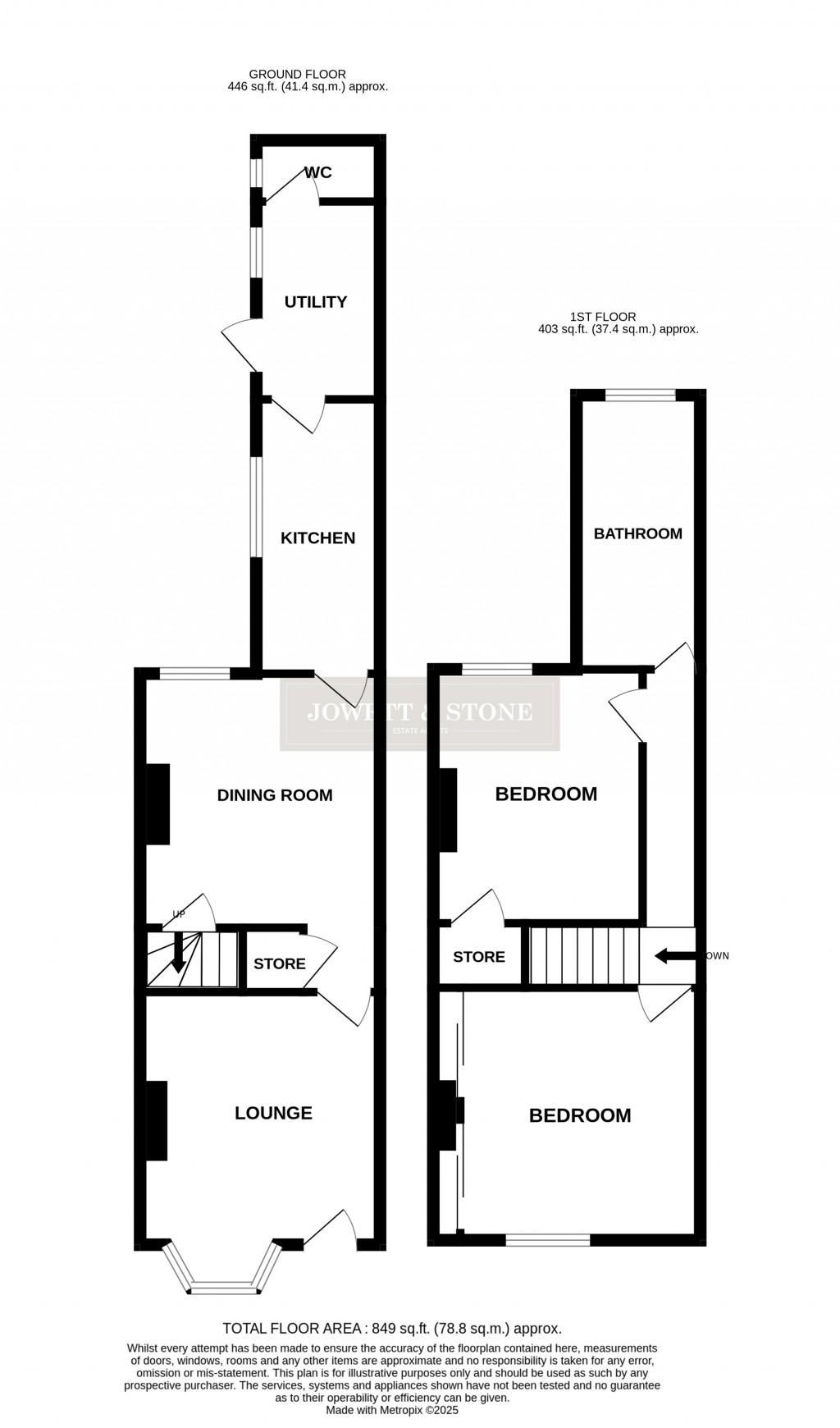
  • Front And Rear Reception Rooms, Kitchen, Utility & WC
  • Landing, Two Double Bedrooms & Bathroom
  • Gas Fired Central Heating System & Double Glazing
  • Low Maintenance Rear Garden
  • Early Internal Viewing Highly Recommended
  • EPC Rating Awaited & Council Tax Band A

A well presented two double bedroom mid terrace property located in the popular location of South Wigston. An ideal investment or first time buy, early viewing comes highly recommended.

A well presented two double bedroom mid terrace property located in the popular location of South Wigston. An ideal investment or first time buy, early viewing comes highly recommended. The property comprises of front and rear reception rooms with central stairs leading to the first floor accommodation, rear kitchen area fitted with modern high gloss base units and having side elevation window, there is a utility area with ample storage, a side door leading to the garden and also access to the ground floor WC. To the first floor the landing gives access to the two good size double bedrooms both benefitting from built in storage & large bathroom with both bath and separate shower cubicle. The property has gas fired central heating and double glazing. Externally the low maintenance rear garden has a slabbed patio area, and fenced sides, there is a shared side access leading to the front. EPC rating awaited and Council tax is band A.

Floorplans For Leopold Street, Wigston, Leicestershire
EPC For Leopold Street, Wigston, Leicestershire
Arrange a viewing for Leopold Street, Wigston, Leicestershire

For further details on this property please call us on:
0116 2789624

Arrange Viewing

Share: